MDX-ES24VK Outside Air Motorized Damper Kits

Outside Air Motorized Damper Kits by S&P

MD6-ES24VK Product Kit

Included Items

  • 1 ES24V - Envirosense Ventilation Control (24V)
  • 1 MD4 - 4" or 1 MD5 - 5" or 1 MD6 - 6" or 1 MD8 - 8" Motorized Damper (24V)

Codes and Standards

  • ASHRAE 62.2 - 2010 & 2013
  • IRC 2012 & 2015

Model Overview

The MDX-ES24VK from S&P allows air to enter dwellings to meet building code and ventilation standards requirements through a motorized damper controlled by a 24V temperature/humidity monitoring control. The control can command the central HVAC blower to help distribute fresh air through the existing duct work if necessary.

The combination of the control and damper will help you meet ASHRAE 62.2 (2010/2013) and IRC (2012/2015) code standard requirements.

Part ID Voltage Frequency
(HZ)
Power
(W)
Insulation
Class
Rated
Ambient (°C)
Noise
(dB)
MD4 24V 60 6 A 40 ≤ 50
MD5 24V 60 6 A 40 ≤ 50
MD6 24V 60 6 A 40 ≤ 50
MD8 24V 60 6 A 40 ≤ 50
Model A B C
MD4 1-3/8 9-7/8 4
MD5 1-3/8 9-7/8 5
MD6 1-3/8 9-7/8 6
MD8 1-3/8 9-7/8 8
Dimensional Drawing (MDX)

MDX

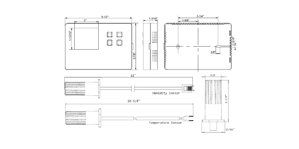
Dimensional Drawing (ES24V)

ES24V

Description  
Outside Air Solutions Brochure
Outside Air Solutions Flyer
MDX-ES24VK Flyer
MDX-ES24VK Submittal
MDX-ES24VK IOM

  • General/Clean Air
  • Outdoor Air Solution